Apartament cu 2 camere și living în complexul rezidențial Colina Verde Residence, Durlești
Raion Chisinau / Oraș Chisinau / Durlești / str. Alexandr Orlov
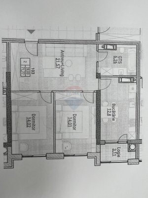
Detalii
| În construcție: Da | Clădire nouă: Da | 
| Starea apartamentului: Variantă albă | Suprafață totală: 71.77 m² | 
| Balcon/Lojie: 1 | Bucătării: 1 | 
| Grup sanitar: 1 | Fond locativ: Construcții noi | 
Facilități
Descriere
Complex modern situat pe str. Alexandr Orlov, într-o zonă liniștită și verde, cu acces rapid spre Chișinău.
 
                             
             Română
                                    Română
                                 Rusă
                                    Rusă
                                 Engleză
                                    Engleză
                                 
                                                         
                                                         
                                                         
                                                         
                                                         
                                                         
                                                         
                                                         
                                                         
                                                         
                                                         
                                                         
                                                 
                                                 
                                                 
                                                 
                                                 
                                                 
                                                 
                                                 
                                                 
                                                 
                                                 
                                                 
                                 
