Loading...
×

RE/MAX Moldova

RE/MAX este o rețea internațională de birouri francizate deținute și operate în mod independent. În calitate de lider global al industriei, deschidem ușile agenților și aducem clienții noștri acasă. Nimeni în lume nu vinde mai multe proprietăți imobiliare decât RE/MAX.

Contactează-ne

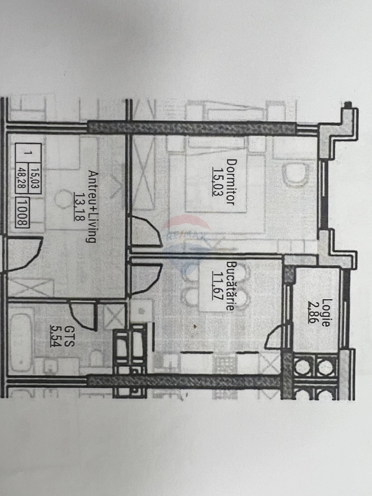
Apartament cu 1 cameră și living în complexul rezidențial Colina Verde Residence, Durlești

Raion Chisinau / Oraș Chisinau / Durlești / str. Alexandr Orlov

Distribuie pe:

RMX_1303

Preț ofertă: 57.212 EUR
1,185 € / mp

308 Vizualizări 1 Azi

Detalii


În construcție: Da Clădire nouă: Da
Starea apartamentului: Variantă albă Suprafață totală: 48.28 m²
Balcon/Lojie: 1 Bucătării: 1
Etaj: 10/12 Grup sanitar: 1
Fond locativ: Construcții noi

Facilități


Descriere


Complex modern situat pe str. Alexandr Orlov, într-o zonă liniștită și verde, cu acces rapid spre Chișinău.

Blocuri noi, construcție de calitate, curte închisă, parcare, spații verzi și loc de joacă.

Posibilitate de achitare în rate

Complex cu primele două tranșe deja date în exploatare

Ideal pentru locuire sau investiție

 Colina Verde Residence – Transa III, Durlești
 Pentru detalii și oferte: 079 000 362

Simulează un credit ipotecar
Suma Solicitată
500 000 MDL
Alege Termenul
180 luni
Plata Lunară
Valoarea Totală Plătibilă
Rata Dobânzii
Dobânda Anuală Efectivă
Tip Dobândă

Fiecare agenție RE/MAX este deținută și operată în mod independent.

Copyright © RE/MAX Moldova 2020-2026. Toate drepturile rezervate.